WELLNESS寒暖差を抑える高気密・高断熱な注文住宅

健康と気密・断熱

部屋間の温度差を解消して、健康を守る

気密・断熱性に優れたフィアスホームは、外気の影響を受けにくく、一日中快適な温度をキープ。
廊下やトイレでも居室と同様にあたたかく、部屋の上下間の温度差も少ないので、
急激な温度変化によるヒーやわらげ一年中快適に過ごせます。

フィアスホーム
居室 25



フィアスホーム
トイレ 18.9

※上記は当社実測試験による。測定場所:千葉県千葉市 測定時期:2月
※当データは実在住宅の測定例であり、住宅の仕様、生活スタイル、測定条件等によって異なった値となる場合があります。

気密性を高めることで
家全体の温度差を少なくします。

冬に家の中が寒いのは、隙間風の冷気、床・壁等からの底冷え、窓からの冷気によるもの。気密性能を高めて隙間風や冷気をなくせば、空気の対流が抑えられ、家全体で温度差を少なく保ちます。

値が小さいほど気密性に優れていることを表すC値、フィアスホームの家は
C値0.33c㎡/㎡ ※2021年度実測値の平均値

断熱性を高かめ、体感温度を保つ

住環境が体への負担があるって本当?

冬に急増する住宅内での循環器系疾患による死亡者


よく耳にするヒートショック。温度差による血圧の上昇によって循環器系の疾患が起こる可能性が高まると言われています。冬場、暖房の効いた部屋と冷えたままの廊下やバス、トイレとの温度差、深夜や早朝などには、布団の中の温度と室温との差を考えると、布団から抜け出るのがつらくなります。急激な温度差は人の体にとって大きな負担となり、心臓発作や脳卒中を引き起こす「ヒートショック」の危険にさらされます。

1年間の住宅内での死亡者の推移

住宅内での死亡者数(人/10万人)
出所:羽山広文他「住環境が死亡原因に与える影響その1」2009

夏に熱中症の発生は住宅内で発生する割合が高い


近年夏は地球温暖化やヒートアイランド現象によって気温が高く、期間も長くなってきています。
熱中症の症状の発生は意外にも住宅内が高い割合を占めています。
また高齢者の発症が約7割を占めています。外気の影響を受けにくい住宅の高断熱化が健康リスクの軽減に期待できます。

冬、同じ室温26℃なのに断熱性により体感温度が違う

同じ室温でも建物の断熱性により、人間が感じる体感温度に違いが出ます。





eパネルに使用されている高性能断熱材

「eパネル」は厚さ70mmの樹脂系断熱材を使用しています。これは一般住宅で使用される「グラスウール10K」に換算すると175mmの厚さに相当します。つまり、一般住宅の40mmの「グラスウール10K」と比べ約4.3倍もの断熱性能を持つことになります。

eパネルに使用される樹脂系断熱材のフェノール樹脂って何?

もっとも繊細な独立気泡で形成された断熱材。多くのプラスチックが熱を受けると溶けるのに対し、フェノール樹脂は熱に強く、フライパンの取手等にも使用される。

なかなかベッドから出られなかった私、
この家で冬の朝も変わった。

冬場の就寝前の快適な気温を朝まで

冬の暖房停止後、フィアスホームの住宅は断熱性が高いので、暖まった空気が冷えにくくなります。
冬の朝など一般工法に比べて、暖かい目覚めを迎えることができます。

※グラフは当社シミュレーションによる。
 測定場所:愛知県名古屋市 天候:くもり 測定時期:1月
※当データはシミュレーションの一例であり、住宅の仕様、生活スタイル、測定条件等によって異なった値となる場合があります。

夏場の就寝前の快適な気温を朝まで

夏の冷房停止後、フィアスホームの住宅は断熱性が高いので、朝まで室温の上昇を抑えます。
冷房を切った状態でも夏の夜快適な就寝環境を実現します。

※グラフは当社シミュレーションによる。
 測定場所:茨城県水戸市 天候:晴天 測定時期:8月
※当データはシミュレーションの一例であり、住宅の仕様、生活スタイル、測定条件等によって異なった値となる場合があります。

熱が部屋にこもってしまったら
外気を取り込んでクールダウン

長く家を空けたあとの帰宅後など長く冷房を切った状態で部屋に熱がこもってしまったら、窓から外気を取り込み部屋の中をクールダウン。風の通り道を工夫することで、室内にこもった熱い空気を逃すパッシブ設計。自然の力を利用して快適な住環境を実現します。


窓を開けた通風シミュレーション

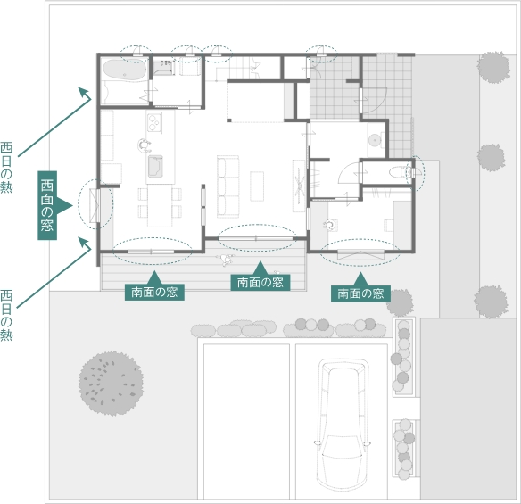
夏の西日に注意、熱中症など健康への影響もあります。

夏場に夕方の西日は
窓のそばに電気ストーブが
あるようなもの

日中、エアコンをつけていて、夕方になるとエアコンの効きが悪くなる経験はありませんか?これは西日の影響。夏の西日は、電気ストーブを置いてあるのとほぼ同じ熱量だからです。

腰窓:351W/m²(西日の熱量) × 1.6m²(腰窓の面積)=561.6W

西日を遮断する設計で夏も快適な暮らし

西日を遮断する設計で 夏も快適な暮らし 日差しを遮るように建物の西面には極力窓を設けず、西日対策された設計でエアコンを極力使わない断熱+遮熱の躯体で熱をシャットアウトできます。

体に優しい家は環境にも家計にもやさしい。

自然の恵みを活かし、
少ないエネルギーで
快適に生活するライフスタイル

自然のエネルギーを味方にするパッシブデザインの「建築的手法」を採用することで、エアコンなどの「機械的手法」をできるかぎり少なくし、省エネ性と快適性の両立が可能です。

光熱費にかかる費用を削減

一般的な高断熱住宅と比べ

年間約 31 万円  
10年で約 310 万円 節約できます。




さらに家で使う基本的なエネルギーも削減

※冷暖房、換気、給湯、照明による電力等の消費量

1次エネルギー消費量
99.4 % 削減




e-レポート

フィアスホームでは、どのくらい省エネ効果があるのかシミュレーションしています。計画時に省エネ効果を確認する事も出来ますので、担当者に確認してみて下さい。

健康的な空気環境

健康的な空気環境

高気密・高断熱住宅のフィアスホームはその性能を効率的に発揮できる換気システムを採用。
熱交換換気システムは、排気の際に汚れた空気と一緒に捨てていた熱を給気時に回収して室内に戻します。
熱回収により空調負担を軽減でき、冷暖房コストを抑えます。
また、冬期では冷たい外気を室温に近づけて給気するので、冷たい空気が侵入する不快感を防ぎます。

有害物質カット

「健康配慮」された高性能なフィルター

冬の寒さ、春の花粉、外のほこりなどが気になって窓を開けたくないという住まい手の声に応えるためのテクノロジーです。高性能フィルターが粒子径2.0㎛以上で約95%除去、粒子径0.5㎛で84%除去でき、クリーンな空気を循環させます。

PM2.5対応

粒子径2.0㎛ 以上で 約95%除去
粒子径0.5㎛で 84%除去

※50m2/h運転時。
対象商品を通過する空気に含まれる粒子数を粒径別に測定し、ワンパス(1回通風)捕集効率をメーカー基準により評価したものです。捕集効率は風量によって異なります。0.5μm未満の微小粒子状物質については除去の確認ができていません。また、空気中の有害物質を全て除去できるわけではありません。PM2.5とは2.5μm以下の微小粒子状物質の総称のことです。

有害物質の原因、結露や湿気を防ぐためには 家の気密性を高めることが大切

冬に結露が多いのは、空気の温度が低くなり、含みきれなくなった水蒸気が水滴となるからです。
またカビ・ダニが増殖する条件は高温多湿であること。家の中にはお風呂場での水使用をはじめ湿気のさまざまな原因があるので、換気にも注意が必要です。

熱のロスをなくして省エネ

高効率・熱交換換気システムを採用

熱交換換気は、排気の際に汚れた空気と一緒に捨てていた熱を給気時に回収して室内に戻します。
熱回収により空調負荷を軽減でき、冷暖房コストを抑えます。
また、冬期では冷たい外気を室温に近づけて給気するので、冷たい空気が侵入する不快感を防ぎます。

快適と省エネを両立する熱交換換気のしくみ(冬期の場合)

●熱交換気のしくみ(冬期の場合)

不快な換気を防ぐしくみ(冬期の場合)

熱交換方式だから約75%の熱ロスを防ぎ、冷暖房費もセーブでき、CO2排出量も抑えます。

乾燥を抑える

健康的な空気環境で乾燥を抑える

乾燥を抑えて快適性アップ(冬期の場合)
相対湿度比較

〈算出条件〉①場所:東京②外気温湿度:拡張アメダスデータ③室内温度:20℃④室内発量:202g/h(部屋干しによる発湿量含む)⑤有効換気量:152㎥/h(37坪相当)⑥気密性能:C=2※実際の効果はお客様のご使用条件により異なります。

有害物質の原因、結露や湿気を防ぐためには 家の気密性を高めることが大切

冬に結露が多いのは、空気の温度が低くなり、含みきれなくなった水蒸気が水滴となるからです。またカビ・ダニが増殖する条件は高温多湿であること。家の中にはお風呂場での水使用をはじめ湿気のさまざまな原因があるので、換気にも注意が必要です。

健康に配慮した工夫

低ホルムアルデヒド仕様の建材を使用

シックハウス症候群の原因といわれるホルムアルデヒドの一般的な対策としては、「ホルムアルデヒドの放散量を減らす」「効率よく室内を換気する」という2点が重要なポイントとなります。フィアスホームでは壁紙などの仕上げ材や接着剤・床材をはじめ、規制の対象となっていない柱・梁幅木などについてもすべて、最もホルムアルデヒドの放散量がすくないとされる「F☆☆☆☆(エフフォースター)」の建材を使用。業界トップレベルの「シックハウス対策」を目指して積極的に取り込み、住宅内の空気環境や住む人の健康に配慮しています。

シックハウス症候群って何?

「シックハウス症候群」とは「室内の空気が汚染されることによって引き起こされる様々な健康障害の総称」とされています。新築やリフォームした住宅に入居した人の、目がチカチカする、喉が痛い、めまいや吐き気、頭痛がする、などの症状が出る「シックハウス症候群」。その原因の一部は、建材や家具、日用品などから発散するホルムアルデヒドやVOC(トルエン、キシレンその他)などの揮発性の有機化合物と考えられています。

室内光で有害物質を除去する
高性能フローリング清潔すこやかフロア採用。

蛍光灯やLEDなどの室内光により、床に付着・蓄積する菌・カビ・ウイルス、臭いやVOC(揮発性有機化合物)等を分解できる先端技術“可視光応答型光触媒”で室内環境を清潔にするフローリング「清潔すこやかフロア」を採用。美しい木の風合いを再現しつつ優れた機能性を持つシートフロアが、足元から家族の安心・安全・健康・快適を見守ります。


花粉や汚れを持ち込まない
「クリーンエントランス」

玄関の手前に設けたクリーンエントランスで手洗いを60秒行うと、手を洗わなかった場合に対して菌の数がおよそ1000分の1に減少。また、花粉などを落としてから玄関に入れば、自分だけでなく家族の健康も守ることにつながります。


汚れを室内に持ち込ませない玄関クローク

玄関の近くにクロークを設置することで、帰ってきたら上着を掛けるという習慣を身に着けることができるので、衛生面だけではなく使い勝手の良さもあります。


100年以上続く技術と品質を皆様の住まいに
長野県の気候に適した全棟高気密・高断熱のZEH仕様
大手ハウスメーカーと同等以上の高品質ハイグレード設備
憧れと理想を叶える完全自由設計のプラン提案
生涯安心に暮らせるアフターサポート長期保証